








用途:
直管壓力平衡波紋補償器(ZYP型)又稱波紋伸縮器、壓力平衡波紋膨脹節、波紋補償器。
補償系統中的軸向位移,內壓推力自身平衡,本品可用于不宜設置固定支架的高物位直管線或大直徑管線中。
型號:
本廠生產DN600-DN4000,壓力級別0.25MPa-0.6MPa。
連接方式:
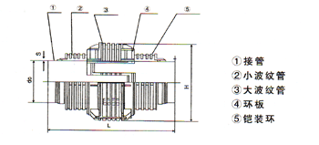
1) 法蘭連接式
2) 接管連接式
產品軸向補償量:
60mm-300mm。
直管壓力平衡波紋補償器(ZYP型) 型號示例
舉例:0.6ZYP500×8/6-JB
表示公稱通徑為500,工作壓力為0.6MPa,大波紋管為8個波,小波紋管為16個波,連接形式為不銹鋼接管連接的直管壓力平衡式波紋補償器。
直管壓力平衡式波紋補償器對支座作用力的計算:
軸向彈性力:Fx=Kx(f*X)
式中:Kx——軸向剛度,N/mm
X ——軸向實際變形量mm
f——計算系數,當預變形(包括△X=0時)
f=1/2。當不進行預變形時,f=1。
應用舉例(不考慮溫度對補償量及剛度的修正)
某碳鋼管道,公稱通徑600mm,工作壓力0.6MPa,介質溫度350℃,環境較低溫度-10℃,補償器安裝溫度20℃,根據管道的布局(如圖)需安裝一直管壓力平衡式波紋補償器,用于吸收管道60mm的軸向熱位移,補償器疲勞破壞次數按15000次考慮,試計算支座A、B的受力。
解:
(1)根據管道的熱位移X=60mm,查樣本可選用0.6ZYP×6/12-J,軸向補償量X0=80mm,軸向剛度Kx=3190N/mm。
(2)對補償器進行預變形,預變形量△X為:
(3)A、B支座受力的計算:
FA=Kx(1/2X)=3190×60/2=95700(N)
FB=-FA
即支座A、B分別承受9.6噸的推力。





山東直管壓力平衡補償器 山西直管壓力平衡補償器